TAus für Stade: Rat segnet Bebauungsplan für DHL-Zustellstützpunkt ab
Der DHL-Zustellstützpunkt Stade an der Altländer Straße platzt aus allen Nähten. Foto: Vasel
In Hollern geht bald die Post ab, in Stade dagegen die Lichter aus: Die Politik hat den überarbeiteten Bebauungsplan abgesegnet. Das plant die DHL.
Hollern. Der 1996 in Kraft getretene B-Plan des Gewerbegebiets Speersort in Hollern musste angepasst werden. Ursprünglich sollten auf der 7800 Quadratmeter großen Fläche mehrere Firmen angesiedelt werden. Planungsrechtlich sind die Voraussetzungen für den Bau eines neuen Zustellstützpunkts damit erfüllt.
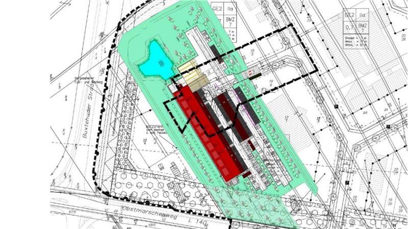
Blick auf das Grundstück (rot umrandet). Foto: Elbberg/Landesamt für Geoinformation
Die Deutsche Post AG (DHL-Group) kann zwischen Wendehammer und Strommasten bauen. Lediglich die Baugenehmigung des Landkreises Stade stehe noch aus, so die Gemeindedirektorin Nele Dehmel. Auf Nachfrage teilte sie mit, dass diese in der Pipeline ist. Mit dem Inkrafttreten des B-Planes könne auch die Baugenehmigung erteilt werden.
Neuer Standort
T Umzug der Post von Stade ins Alte Land wird konkret
Der Neubau im Gewerbegebiet Speersort soll bekanntlich zwei Zustellstützpunkte ersetzen. Seit 2012 sitzt die DHL-Group als Mieter im früheren Pressevertrieb Mügge in der Altländer Straße in Stade. Dieser platzt aus allen Nähten. Im Sommer 2023 schloss die Deutsche Post nach Auslaufen des Mietvertrages auch noch ihren Zustellstützpunkt an der L140/Ecke Postweg in Steinkirchen. Die Zusteller aus dem Alten Land sind vorübergehend am Schwingedeich in Stade untergekommen.

Blick auf den geplanten Zustellstützpunkt der DHL-Group in Hollern. Foto: Elbberg
Nach Fertigstellung sollen die Sendungen für Stade, Fredenbeck und das Alte Land in Hollern vorsortiert und von dort aus zugestellt werden. Rund 85 Mitarbeiter sollen hier arbeiten - möglicherweise bereits ab 2026/2027. Insgesamt 75 Zustellfahrzeuge sollen in Hollern stationiert werden.
Das 2000 Quadratmeter große Gebäude soll westlich von Peugeot Vollmers unterhalb der Stromtrasse im Gewerbegebiet Speersort und damit östlich der Landesstraße L111 (Buxtehuder Straße) entstehen. Der Standort ist laut der DHL-Group ideal - auch durch die Nähe zur A26.
Ähnliche Zustellpunkte sind bereits in Horneburg, Harsefeld und Buxtehude errichtet worden. Die Kosten für den B-Plan trägt die Post, beauftragt wurde das Planungsbüro Elbberg aus Hamburg.

Hier entsteht die Zufahrt zum DHL-Stützpunkt im Gewerbegebiet Speersort in Hollern. Foto: Vasel
Hollern-Twielenfleths Bürgermeister Dirk Thobaben und der Rat dankten Nele Dehmel in der Sitzung für ihr Engagement für die Kommune. Sie wechselt zum 1. September als Abteilungsleiterin für das Asylbewerberleistungsgesetz ins Stader Kreishaus. Im Rathaus führte sie den Fachbereich Ordnung, Bildung, Soziales und Kultur.