T180 Interessenten für 35 Bauplätze im Alten Land
Erster Spatenstich für das Baugebiet Appelhoff in Jork-Borstel. Ab Ende 2025/Anfang 2026 können Häuslebauer ihr Eigenheim mit Blick auf die Apfelplantage errichten. Foto: Vasel
Erster Spatenstich für das Baugebiet Appelhoff in Jork-Borstel. Die Bauplätze sind heiß begehrt. Jetzt stehen die Preise fest.
Jork. Gemeinsam mit den Geschäftsführern der Sparkassen-Tochter IDB, Manuel Bossemeyer und Jens Willbrandt, griff Bürgermeister Matthias Riel am Freitagnachmittag in Borstel zum Spaten. Gunnar Brandt vom Bauunternehmen Hahn, Verwaltungsvize Arne Krüger und der Vorsitzende des Bauausschusses, Stefan Pölk (CDU), sekundierten, während Sparkassen-Vorstand Michael Senf auf den Bagger stieg. Rund ein Jahr werden die Erschließungsarbeiten dauern. Das heißt: Ab Ende 2025/Anfang 2026 können Häuslebauer den Grundstein ihres Hauses legen.
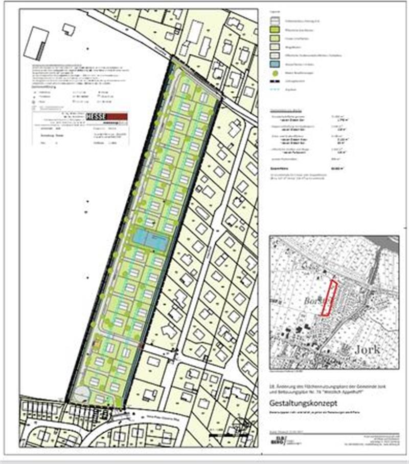
35 Bauplätze für Einzel- oder Doppelhäuser können westlich des heutigen Wohngebiets auf 3,5 Hektar entstehen. Das neue Baugebiet „Westlich Appelhoff“ wird im Norden vom Struckweg und im Süden vom Hans-Peter-Siemens-Weg begrenzt. Die Größe der Grundstücke variiere zwischen 500 und 700 Quadratmeter. Mindestgröße je Doppelhaushälfte: 300 Quadratmeter.
Grundstückspreis liegt bei 345 Euro pro Quadratmeter im Schnitt
Laut IDB-Geschäftsführer Jens Willbrandt werden die Verkaufspreise zwischen 320 und 370 Euro pro Quadratmeter liegen. Die Nachfrage ist groß, aktuell stehen 180 Interessenten auf der Liste. „Das zeigt uns, dass die Nachfrage nach Bauland im Alten Land ungebrochen ist“, ergänzte sein Kollege Manuel Bossemeyer. Möglichst viele Jorker sollen kaufen können.
Commerzbank-Analyse
Prognose: Immobilienkrise endet, doch Bauzinsen sinken kaum
Die zur Sparkasse Stade-Altes Land gehörende IDB hat mit der Gemeinde einen städtebaulichen Vertrag geschlossen. 405.000 Euro fließen als Folgekostenbeitrag an die Kommune. Dieses Geld dürfen die Altländer nicht auf den Kopf hauen. Es muss zweckgebunden verwendet werden und muss in den Kita-Bereich fließen - etwa in den Umbau der Schule Ladekop zum Kindergarten. Pro Quadratmeter werden 20 Euro als Strukturbeitrag fällig.
Damit es nicht zu Nachbarschaftskonflikten kommt, werden auf Kosten des Erschließungsträgers IDB die Diesel-Pumpen der Beregnungsanlagen auf den angrenzenden Obstplantagen durch leisere Elektropumpen ersetzt.

Blick auf Jork-Borstel und das Wohngebiet „Westlich Appelhoff“, das im Osten an die vorhandene Bebauung grenzt. Foto: Elsen
Das Baugebiet war bereits 2007/2008 in der Diskussion. Ab 2020 ging es in die Umsetzung, verbunden mit umfangreicher Bürgerbeteiligung. Der Rat segnete das Gebiet einstimmig ab.
Rita Pape vom Ingenieurbüro Meyer aus Moisburg hat die Entwässerung auf ein 20-jähriges Starkregenereignis ausgelegt - vorgeschrieben wäre nur ein fünfjähriges. Das Regenwasser wird gedrosselt und über ein Rückhaltebecken in der Mitte und einen Graben als Zweitspeicher entlang der bestehenden Bebauung abgeführt.
Kleierde für den Deichbau im Alten Land
Bodenaustausch ist notwendig. Ein Drittel des Klei-Bodens, etwas mehr als 3000 Kubikmeter, soll beim Deichbau vor Ort eine Verwendung finden. Straße und Wege werden wegen des schwierigen Untergrunds auf einem „Polster“ errichtet.

Gestaltungskonzept des Wohngebiets Appelhoff in Jork-Borstel. Foto: Elbberg/Gemeinde Jork
Erschlossen wird es über den Struckweg. Für die Zeit der abschnittsweisen Erschließung wird eine Baustraße bis zur K39 gebaut - auf Höhe Hauschildt. Am Ende der Stichstraße wird ein Kreisel realisiert, so können große Müllfahrzeuge die Tonnen abholen. Erlaubt ist eine zweireihige Bebauung mit Satteldach und Vollgeschoss. Pro Haus sind bis zu zwei Einheiten erlaubt. Solarstrom- und Thermie-Anlagen sind zulässig. Eine Gasversorgung ist nicht mehr vorgesehen.
Immobilienkrise
T Analyse: So viele Wohnungen im Kreis Stade stehen leer
Bauplätze in der Gemeinde Jork heiß begehrt
Die Nachfrage nach Baugrundstücken für Einfamilienhäuser übersteigt seit Jahren das Angebot deutlich. Die Flächen sind knapp. Das neue Wohnraumversorgungskonzept des Kreises Stade hat weitere Probleme aufgezeigt.
Mit dem Appelhoff hat die Politik ihre Hausaufgaben noch nicht erledigt. Es fehlen bezahlbare und barrierearme Wohnungen, so die Experten des Institut für Wohnungswesen, Immobilienwirtschaft, Stadt- und Regionalentwicklung (InWIS) aus Bochum. Junge Starter-Haushalte und Senioren ziehen weg - auch wegen des hohen Mietpreisniveaus und hoher Grundstückspreise.
Bezahlbarer Wohnraum fehlt in der Kommune
Aktuell gibt es 5800 Wohnungen in der Gemeinde. Der Anteil der Einfamilienhäuser ist hoch. Nur 25 Prozent der Wohnungen gehören zu einem Mehrfamilienhaus.
Aktuell gibt es noch sieben öffentlich geförderte Wohnungen, im Jahr 2016 waren es noch 225. In sechs Jahren wird es nach dem Auslaufen der Bindung keine Sozialwohnung mehr in der Kommune geben. Der Bedarf an preisgünstigen Wohnungen liege bei 46 Wohneinheiten. Außerdem müssen 275 Wohnungen für die 60-plus-Generation barrierefrei werden.
Die Bevölkerung wird bis 2040 um 1,4 Prozent auf knapp 12.250 Einwohner wachsen. Der Anteil der Älteren und Singles steige: Kurzum: Die Planer vom Büro InWIS gehen von einem Bedarf von 234 Wohnungen in Mehrfamilienhäusern und 77 Ein- und Doppelhäusern aus.

Blick auf die Wiesen, auf der früheren Apfelplantage entsteht das neue Baugebiet. Foto: Vasel